Über den Dingen leben – inmitten der Stadt und doch ganz für sich.
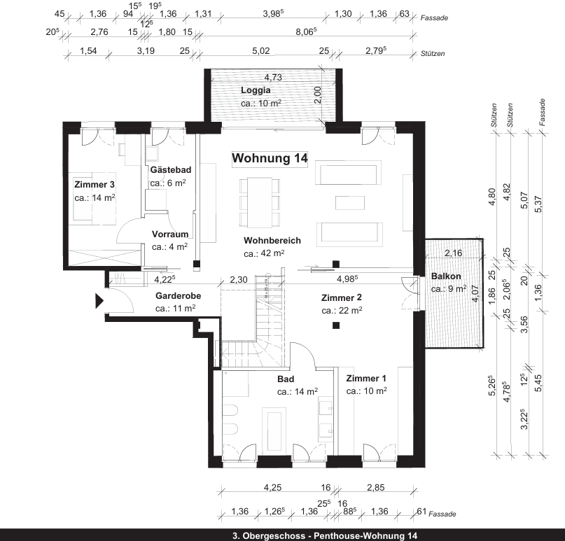
Dieses beeindruckende Penthouse-Maisonette bietet rund 202 m² Wohnfläche auf zwei Ebenen und vereint großzügige Architektur, lichtdurchflutete Räume und ein Wohngefühl, das in Fulda seinesgleichen sucht.
Das Herzstück der Wohnung bildet der weitläufige Wohn- und Essbereich mit moderner Einbauküche und Zugang zur geschützten Loggia. Hier verschmelzen Raum und Licht zu einem offenen, harmonischen Wohnkonzept.
Mehrere Schlafzimmer, zwei stilvolle Bäder und flexible Nutzungsflächen bieten Komfort und Rückzugsmöglichkeiten für unterschiedliche Lebensphasen.
Ein echtes Highlight ist die Dachterrasse mit ca. 96 m² Fläche und beeindruckendem 270°-Blick über Fulda. Durch ihre großzügige Süd-Ausrichtung genießen Sie hier den ganzen Tag Sonne – ideal für gemütliche Stunden im Freien, gesellige Abende mit Freunden oder entspannte Momente unter freiem Himmel. Diese Fläche ist wie geschaffen für Menschen, die urbanes Wohnen mit großzügigem Außenraum verbinden möchten.
Die Wohnung ist per Aufzug erreichbar und barrierearm gestaltet. Beide Ebenen sind über den Hausaufzug erschlossen; ein privater Aufzug kann bei Bedarf nachgerüstet werden.
Zwei großzügige Carport-Stellplätze im geschützten Innenhof sind im Kaufpreis bereits enthalten.
Das Penthouse liegt in einer der begehrtesten Innenstadtlagen Fuldas – ruhig, zentral und mit hervorragender Infrastruktur.
Aktuell ist die Wohnung vermietet – ideal für Interessenten, die für die Zukunft planen und heute schon eine hochwertige Immobilie mit solidem Mietertrag sichern möchten.
Die gezeigten Innenaufnahmen wurden mit Unterstützung von KI-Bildbearbeitung aufbereitet, um private Gegenstände des Mieters zu anonymisieren und einen neutralen Raumeindruck zu vermitteln.
Hinweis zur Wohnflächenberechnung:
Die angegebene Gesamtwohnfläche von ca. 202 m² setzt sich aus ca. 171 m² geschlossener Wohnfläche sowie ca. 114 m² Außenflächen (Loggia, Balkon und Dachterrasse) zusammen.
Die Loggia (ca. 10 m²) wurde mit 50 % berücksichtigt.
Der Balkon (ca. 8 m²) sowie die Dachterrasse (ca. 96 m²) wurden jeweils mit 25 % in die Wohnfläche eingerechnet.
Diese transparente Darstellung ermöglicht eine realistische Einordnung der Raumgrößen und berücksichtigt zugleich die außergewöhnliche Großzügigkeit der Außenbereiche.
Erleben Sie modernes Wohnen mit Weitblick – in einer Immobilie, die Raum, Stil und Perspektive bietet.
Wir freuen uns auf Ihre Anfrage und darauf, Ihnen dieses außergewöhnliche Penthouse persönlich zu zeigen..




